Du relevé terrain a la maquette BIM — chaine complete maîtrisée en interne, sans sous-traitance. Acquisition, traitement du nuage et livrables : un seul interlocuteur, un forfait ferme.
Un ecart de ±20 mm sur un support gros oeuvre, c'est un chassis ou un mur rideau qui ne rentre pas, un vitrage a recouper et 3 semaines de retard.

Auto-calibration avant chaque scan. Chaque station capture des millions de points avec une précision de ±2,3 mm a 150 m. Reference pour les relevés de façade, les réceptions de support et le controle dimensionnel.
Relevé existant · Réception support · Controle dimensionnel · Alimentation BIM · Réception finale

Scanner LiDAR portable haute précision. Radar laser 200 kHz, balayage 720° sans angle mort. Deux cameras CMOS pour SLAM visuelle et colorisation automatique du nuage. Ultra leger (1,45 kg), 95 min d'autonomie, SSD 512 Go embarque.
Suivi avancement · Grands volumes · Interieurs/exterieurs · Captation rapide · Colorisation automatique
Nous maitrisons la chaine complete en interne : acquisition terrain en France, traitement du nuage a Dakar, livraison des fichiers exploitables. Un contact, un devis, un livrable.
N'importe qui peut acheter un scanner. La vraie valeur, c'est ce qu'on fait avec les millions de points captures. Assembler, nettoyer, extraire, modeliser, mesurer, comparer — c'est un metier a part entiere.
Recalage de toutes les stations en un nuage unique. Vérification des raccords, correction des derives.
Suppression du bruit, des personnes, des elements temporaires. Le nuage ne contient plus que la geometrie utile.
Coupes horizontales, verticales, plans cotes, profils, mesures d'ecarts. Le nuage devient un outil de travail.
Modélisation 3D dans Revit a partir du nuage nettoye. Export IFC pour la maquette de coordination.
Pour un batiment tertiaire standard, l'acquisition terrain dure 1 a 2 jours. Le traitement du nuage mobilise 7 a 15 jours d'operateurs specialises. C'est la que la donnee brute devient un outil de decision.
Batiment existant, plans incomplets ou anciens. Le scan produit des plans cotes millimetriques ou une maquette BIM.
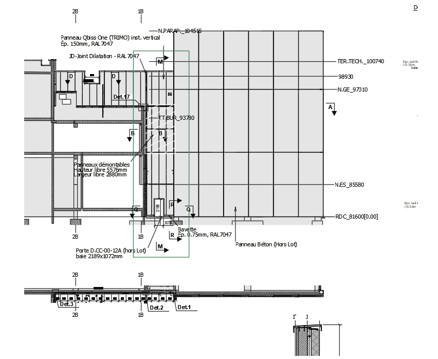
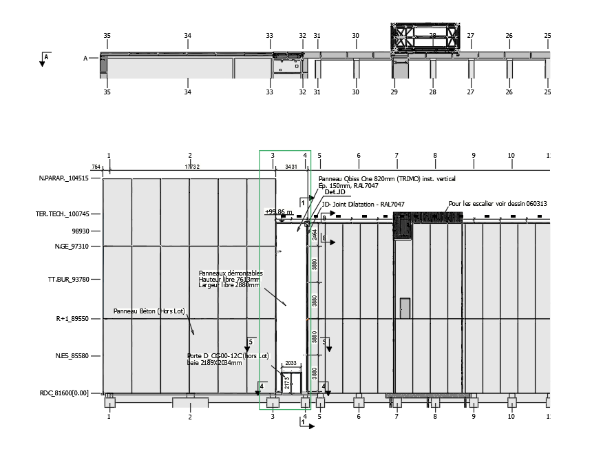
Avant pose des façades : scan des supports beton, comparaison avec les plans theoriques, cartographie des ecarts.
Captations regulieres au SLAM2000. Chaque nuage date, colorise, superpose au precedent et compare a la maquette.
Ouvrage fini : scan et superposition avec la maquette BIM. Ecarts mesures et classes. Preuve numerique incontestable.
Scan du batiment existant, traitement complet, modélisation Revit LOD 200 ou 300. Pret a intégrér dans la maquette de coordination.
Le nuage sert de decor 3D realiste pour le mode opératoire de pose : sequences, positions de nacelles, trajectoires de colisage.
Formats supplementaires sur demande : .RCP (Recap), .OBJ, .LAS/.LAZ, .FBX. Export géoréférencé GNSS disponible.
Nuages de points, cartographies thermiques, mesures dimensionnelles et superpositions BIM — extraits de nos missions reelles.
Envoyez-nous l'adresse, la surface approximative et le type de livrable souhaite. Réponse sous 24h avec un devis forfaitaire ferme.
Devis gratuit · Réponse sous 24h · Forfait ferme